Description
Attention : Vous devrez vous équiper d’un chariot élévateur pour le déchargement du pont au moment de la livraison
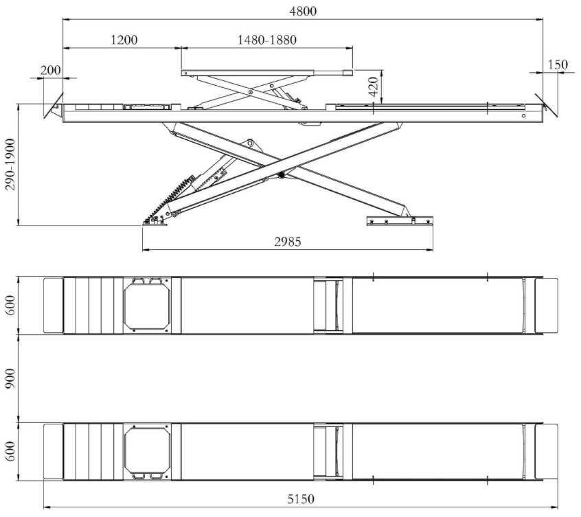
L’Invento SL450 LTPD est un pont élévateur d’une capacité de levage de 4,5 tonnes, conçu pour le parallélisme des roues, avec détecteurs de jeu intégrés dans 8 directions. Il est doté d’emplacements spéciaux pour les plateaux tournants et de plaques d’extension montés sur des rampes de 4 800 mm de long.
De plus, un élévateur ciseaux d’une capacité de levage de 3,5 tonnes est intégré aux rails de roulement, permettant de lever le véhicule à une hauteur de 420 mm.
De plus, un élévateur sous-seuil est intégré aux rampes.
- Détecteur de jeu 8 directions intégré
- un élévateur sous porte de 3,5 T intégré aux rampes permet de soulever le véhicule à une hauteur de 420 mm
- longueur de la plate-forme 4,8 m
- possibilité d’installation en surface ou au sol
- la protection mécanique de l’ascenseur assure un nivellement parfait des plates-formes lors de la mesure de la géométrie
- la capacité de soulever le véhicule à une hauteur de 1 900 mm
- l’élévateur n’a pas de rails pour le montage de l’élévateur d’essieu
- Pour un montage au sol, des rampes d’accès (fournies avec les cache-câbles) sont nécessaires. (non incluses)
- transport inclus dans le prix
L’élévateur Invento SL 450 LTPD est équipé des dispositifs de sécurité requis par la documentation CE, garantissant un fonctionnement sûr et durable en atelier.
Il est conçu pour une installation en intérieur, dans des espaces clos et exempts de tout obstacle. Plage de températures de fonctionnement : -10 °C à 40 °C.
- Capacité de levage: 4 500 kg
- Capacité de levage de l’élévateur sous seuil: 3 500 kg
- Hauteur de levage: 1 900 (+420) mm
- Hauteur minimale: 290 mm
- Longueur des rampes: 4800 mm
- Longueur des plateformes élévatrices sous seuil : 1 480 – 1 880 mm
- Largeur de la plate-forme: 600 mm
- Distance entre les ciseaux: 900 mm
- Temps de levage: <90 secondes
- Alimentation électrique: 400 V/50 Hz
- Puissance 3,0 kW
Attention : Vous devrez vous équiper d’un chariot élévateur pour le déchargement du pont au moment de la livraison















